Designed for Support & Peace of Mind
Your home is the foundation for a vibrant, fulfilling life. Set against the serene backdrop of North Austin, our community combines thoughtful modern design with the natural beauty of the Texas landscape.
Whether you need a spacious two-bedroom apartment for entertaining or a cozy studio for peace of mind, we offer a variety of layouts to suit your style. Our larger models provide additional choices to ensure you find the perfect fit.
Floor Plan Options with Walking-Distance Convenience
All of our apartment rates include utilities (excluding phone service), internet, housekeeping, transportation, and a wide variety of services and amenities.
Pricing and availability are subject to change. Please contact our sales team for the most up-to-date information.
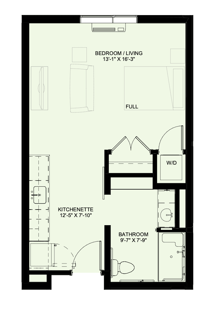
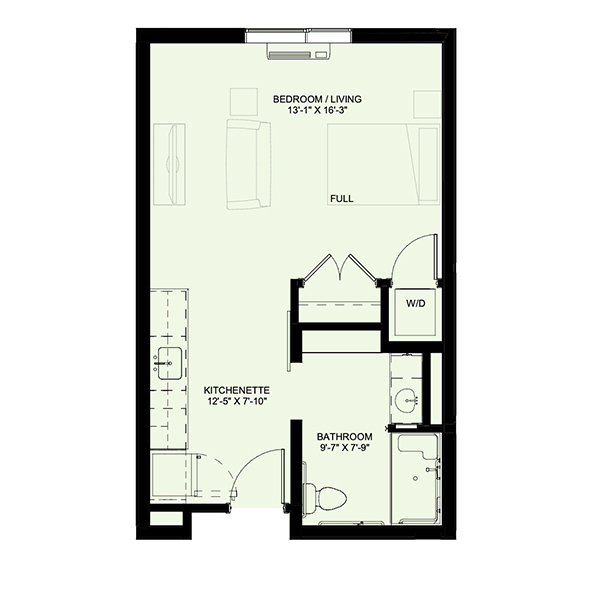
Walnut
Assisted Living
Studio |
1 Bath |
443–539 Sq. Ft.
Maple
Assisted Living
1 Bed |
1 Bath |
576–731 Sq. Ft.
Oak
Assisted Living
2 Bed |
2 Baths |
709–1,193 Sq. Ft.
Willow
Memory Support
Studio |
1 Bath |
346–353 Sq. Ft.

A Space That Reflects Ease
Your private residence is more than just an apartment—it is your personal sanctuary.
- Pet-Friendly: We happily welcome your four-legged family members.
- Modern Kitchens: Featuring upgraded appliances and high-quality finishes.
- Bright Interiors: Large windows invite the Austin sunshine in.
- In-apartment washer and dryer: in assisted living apartments.
Frequently Asked Questions
Absolutely. We want your apartment to feel like home. We encourage you to bring your favorite furniture, artwork, and keepsakes to personalize your space.
Yes. All of our apartments are designed with accessibility in mind, featuring wide doorways and accessible bathrooms to offer comfort and support for residents with mobility needs.
Yes. Our standard floor plans feature all the expected amenities of home, while our Memory Support floor plans are intelligently designed for easy navigation and supportive care.
Most of our floor plans include generous closet space. We also offer additional storage options in select apartments for residents who need a little extra room for their belongings.
See Maintenance-Free Freedom for Yourself
Floor plans are a start, but nothing compares to walking through the space. Contact us today to schedule your personal tour of our model apartments.
Join Our Team

Are you passionate about putting people first?
Join a company that is a certified Great Place To Work® and find a career that is rewarding on every level. We offer excellent pay, benefits, and a chance to grow while bringing joy to our resident at Clearwater at The Arboretum.
Contact Us
Join a community that is proud to offer an exceptional lifestyle that is truly rewarding on every level. Get in touch today to see how.
Start the Journey Toward Easy Living Today
Our community is conveniently located in Gateway, just moments from the MoPac and Highway 183 intersection.
We are situated near top-tier medical care at St. David’s North Austin Medical Center, making visits exceptionally easy for our residents and their families.
Address
- 10001 Stonelake Blvd.
- Austin, TX 78759
Contact Us
- Phone: (512) 236-5102
- Email: thearboretum-marketing@clearwaterliving.com

